除尘器除尘技术
发布者: 展卓 发布时间:9/29/2015 5:15:31 PM
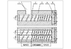
电袋复合式除尘技术:
电袋复合除尘器即在一个箱体内,前端安装一短电场,后端安装滤袋场,烟尘从左端引入,首先经过电场区,尘粒在电场区荷电并有80%~90%粉尘被收集下来。(发挥电除尘的优点,降低袋场负荷)。经过电场的烟气部分通过电场区后进入袋区,经滤袋外表面进入滤袋内腔,粉尘被阻留在滤袋外表面,纯净的气体从内腔排气烟道,从烟道排出。电袋复合式除尘器结合了电除尘器及纯布袋除尘器两者的优点,是新一代的除尘技术,当今国内共有将近200台的电袋复合式除尘器投入使用。
袋式(布袋)除尘技术:
定义:利用滤袋进行过滤除尘的技术。
滤袋的材质:天然纤维、化学合成纤维、玻璃纤维、金属纤维。
形式:气体由滤袋外到内部,粉尘在滤袋外表面
气体由滤袋内到外部,粉尘在滤袋内表面
电袋复合除尘器即在一个箱体内,前端安装一短电场,后端安装滤袋场,烟尘从左端引入,首先经过电场区,尘粒在电场区荷电并有80%~90%粉尘被收集下来。(发挥电除尘的优点,降低袋场负荷)。经过电场的烟气部分通过电场区后进入袋区,经滤袋外表面进入滤袋内腔,粉尘被阻留在滤袋外表面,纯净的气体从内腔排气烟道,从烟道排出。电袋复合式除尘器结合了电除尘器及纯布袋除尘器两者的优点,是新一代的除尘技术,当今国内共有将近200台的电袋复合式除尘器投入使用。
袋式(布袋)除尘技术:
定义:利用滤袋进行过滤除尘的技术。
滤袋的材质:天然纤维、化学合成纤维、玻璃纤维、金属纤维。
形式:气体由滤袋外到内部,粉尘在滤袋外表面
气体由滤袋内到外部,粉尘在滤袋内表面






